IN PLANUNG / IM BAU



im_bau
abstand
Appartementwohnhaus Heinsberg
WHS Douven
WHS Nuyken
WHS Houben
WHS Gransch
WHS Stelten
01







abstand
KFZ Werkstatt Koken
WHS Simons - Deriks
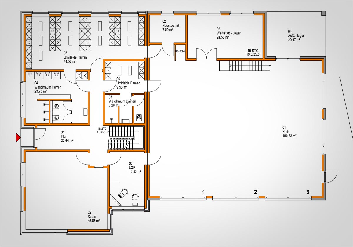
Werkhalle in Waldfeucht Gewerbegebiet
Feuerwache Löschgruppe Havert-Schalbruch
Geplant aber nicht realisiert worden. 2014
01





abstand
WHS Quasten
2015
01





abstand
WHS Schwillens-Uemmels
2015